

Espace A'Capella
Salle polyvalente
Située au 1 chemin des Ecottas.
Cet espace peut accueillir jusqu'à 289 personnes.
- d'un hall avec bar de 80 m²
- d'une grande salle de 237 m²
- d'une grande scène pour les futurs spectacles de 62 m² avec loges
- de gradins rétractables pour 139 personnes assises + 80 fauteuils en avant-scène

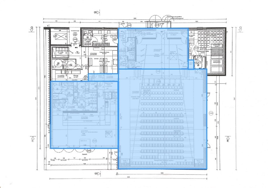
CONFIGURATION BLEUE
Caractéristiques :
Hall : 52,55 m2
Bar : 27,15 m2
Salle : 236,40 m2
Scène : 62,00 m2
Nombre de places debout : 289
Nombre de places assises : 192
(160 si tables rondes)

CONFIGURATION ORANGE
A partir de 2025
Nombre de places debout : 150
Nombre de places assises : 112
(92 si tables rondes)
Caractéristiques :
Hall : 52,55 m2
Bar : 27,15 m2
Salle : 236,40 m2

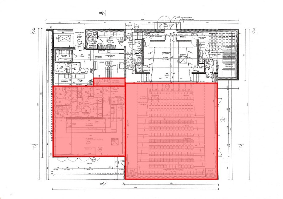
CONFIGURATION ROUGE
Caractéristiques :
Hall : 52,55 m2
Bar : 27,15 m2
Salle : 236,40 m2
Nombre de places debout : 289
Nombre de places assises : 192
(160 si tables rondes)

CONFIGURATION
VERTE
Caractéristiques :
Hall : 52,55 m2
Bar : 27,15 m2
Salle : 100 m²
Nombre de places debout : 150
Nombre de places assises : 100
(64 si tables rondes)
Pour les configurations bleue, rouge, vous trouvez ci-dessous les possibilités d'agencement avec tables rondes et/ou rectangulaires
Pour la configuration verte, vous pouvez disposer des tables rondes ou des tables rectangulaires
TARIFS


- Si votre demande est validé, vous pourrez remplir le contrat de location, signer le réglement intérieur, et le prélevement SEPA.
Documents pour les locations à partir de 2025 :
file_downloadTarifs EAC à partir du 1 janvier 2025.pdf (PDF - 222.66 kB)
file_download2025-Pre-reservation Espace A_Capella.pdf (PDF - 112.12 kB)
file_download2025-Contrat loc _ Règle. int. EAC.pdf (PDF - 435.42 kB)
file_downloadConfigurations de location Espace A_Capella.pdf (PDF - 416.36 kB)
file_downloadPlans configurations avec mesures.pdf (PDF - 1.83 MB)
AGENDA des Réservations : Lien Agenda